wspomaganie cB ciąg dalszy

Wszystkie informacje o elementach układu kierowniczego Corsy B.
ODPOWIEDZ
olmax1
Bez listowiec ;-)
Posty: 3
Rejestracja: 19 maja 2009, o 12:31
Podziękował;: 0
Otrzymał podziękowań: 0

wspomaganie cB ciąg dalszy

Post autor: olmax1 »

witam podłączyłem wspomaganie elektryczne i objaw mam taki że działa tylko w lewo natomiast w prawo to
brak reakcji czy ktoś miał takie zdarzenie i czy to można w jakiś sposób rozwiązać
proszę o pomoc
swastie
Bez listowiec ;-)
Posty: 6
Rejestracja: 4 cze 2009, o 01:48
Podziękował;: 0
Otrzymał podziękowań: 0

Re: wspomaganie cB ciąg dalszy

Post autor: swastie »

z tego co wiem (nie mam wspomagania ale kiedys mialem corse C ze wspomaganiem) taki jest objaw jak padło wspomaganie (MOZE KUPILES USZKODZONE)
Awatar użytkownika
wolga85
Weteran
Posty: 1035
Rejestracja: 12 sty 2009, o 21:03
Imię: Marcin
Lokalizacja: Gdów (na południe od Krakowa)
Podziękował;: 0
Otrzymał podziękowań: 22 razy

Re: wspomaganie cB ciąg dalszy

Post autor: wolga85 »

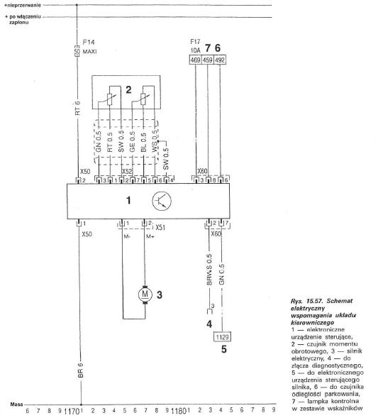
Są dwie możliwości albo padła jednostka sterująca albo pochrzanił się czujnik momentu obrotowego ale jego awarię sygnalizuje jednostka i wyłącza wspomaganie. Jeśli masz omomierz to możesz sprawdzić czy wskazania obu rezystorów są zgodne najlepiej dwa omomierze bo cieżko trzymac kierownice z tym samym momentem lub podłaczyc żarówke do orginalnego wyjścia kontrolki EPS i zobaczysz czy jednostka nie podaje błędu. Możliwe że sie zapiekł i podaje tylko sygnał na skręt w prawo ale raczej to jednostka. Sprawdz czy wszysko podłączyłeś wg schematu
wspomaganie.jpg
wspomaganie.jpg (30.23 KiB) Przejrzano 6291 razy
6 do 100 czy 6 na 100. Oto jest pytanie
Awatar użytkownika
-=m&m=-
Website Admin
Website Admin
Posty: 4925
Rejestracja: 25 kwie 2004, o 17:33
Imię: Michał
Lokalizacja: Wrocław/Ziemia Obiecana
Podziękował;: 7 razy
Otrzymał podziękowań: 12 razy
Kontakt:

Re: wspomaganie cB ciąg dalszy

Post autor: -=m&m=- »

Opis naprawy użytkownika grezur znaleziony na forum opel24

Opiszę naprawę elektrycznego wspomagania (EPS) w samochodzie Opel Corsa B (rok prod. 1998) Silnik 1.0 12V (X10XE).
Jak ja to robiłem i na co należy zwrócić uwagę?
Objawy:
Samochód podczas powolnej jazdy (geometria i zbieżność ustawiona poprawnie, ciśnienie w ogumieniu prawidłowe) i puszczeniu kierownicy ściąga (zazwyczaj) w lewo lub (z czym jeszcze się nie spotkałem) w prawo. Dodatkowo na postoju w lewo kręci się lekko a w prawo trzeba użyć sporej siły. Czasami występują "przeskoki" lub "zawieszenia" wspomagania podczas skręcania.

Przyczyna:
Bliżej nieokreślona. Być może starzenie się części.

Diagnoza:
Czujnik kąta skrętu kierownicy (czasem nazywany ‘czujnikiem momentu obrotowego’).

Zaopatrzenie:
1. Na początek zapewnijmy sobie sporo światła (najlepiej jakaś lampka, którą można ułożyć na pedałach (tam nam będzie potrzebna).
2. Śrubokręt "krzyżakowy".
3. Klucz TORX 25 (2,5) w kształcie litery "L" (żadne zestawy ALLinONE nie zdadzą tu egzaminu).
4. Ewentualnie cienkie rękawiczki (ja robiłem to bez i całe ręce miałem pokaleczone plastikami :/ )
5. Dużo cierpliwości ;)
6. W zależności od zdolności około 2 godzin wolnego czasu.

1. Co odkręcamy?
Najpierw odsuńmy sobie fotel kierowcy maksymalnie do tyłu i otwórzmy drzwi na maksymalną szerokość - dużo miejsca do manewrowania to podstawa sukcesu!
Odkręcamy osłonę kolumny kierownicy (3 śruby od dołu, 2 śruby schowane za kierownicą w rogach, do których dostęp uzyskujemy przez przekręcenie kierownicy w lewo i prawo oraz zdjęcie zaślepek) - wbrew pozorom nie trzeba demontować "daszka" zegarów - wystarczy trochę pokombinować a górna część obudowy wyjdzie bez problemu ;). Odkręcamy także 2 śruby trzymające plastik pod kierownicą (na wprost kolan kierowcy) - ten, za którym są bezpieczniki po to, aby odgiąć sobie go dla ułatwienia dostania się do śrub czujnika. Dostęp do śrub uzyskujemy przez zdjęcie pokrywy skrzynki bezpieczników.

2.1. Lokalizacja czujnika.
Po schyleniu się i zlokalizowaniu elementu, który zaznaczyłem na załączonym zdjęciu widać będzie 2 śruby TORX (25 / 2,5) trzymające blaszaną osłonę czujnika kąta skrętu kierownicy, spod której wychodzi wiązka kabli...
EPS.jpg
EPS.jpg (227.03 KiB) Przejrzano 6289 razy
...Jest do nich w miarę łatwy dostęp, ponieważ ich oś gwintu jest równoległa do kolumny kierownicy. Po odkręceniu tych 2 śrub i zdjęciu blaszki zabezpieczającej, ukaże się nam czujnik kąta skrętu kierownicy przykręcony 2 śrubami torx tego samego rozmiaru. Wystarczy je poluzować, aby dokonać korekty w ustawieniu czujnika, jednak ich umiejscowienie (prostopadle do kolumny kierownicy oraz pod pewnym kątem) skutecznie to utrudnia. Aby mieć do nich łatwiejszy dostęp, można wypiąć wiązkę podłączoną do dźwigni kierunkowskazów.
2.2. Uwaga!!! Kilka słów o wypinaniu wiązki stacyjki.
Co do wypinania wiązki stacyjki (duża czarna okrągła wtyczka, po przeciwnej stronie kluczyka) - na początku nie wypinałem jej bo nie chciała wyjść, lecz później okazało się że przeszkadza więc po podważeniu czarnego plastiku znad białych wypustek udało mi się ją wyjąć - jednak nie ma tam takich styków jak w przypadku wtyku kierunkowskazów, lecz dwie blaszki na sprężynkach (styczniki) - Uwaga aby nie wypadły i ich nie zgubić;). Należy robić to delikatnie, bo łatwo połamać zatrzask (co niestety mi się przytrafiło - jednak Super Glue mnie uratował :])
eps_po.jpg
eps_po.jpg (114.06 KiB) Przejrzano 6289 razy
3. Poluzowanie śrub czujnika kąta skrętu kierownicy.
Pierwszą śrubę powinno się udać poluzować bez problemu. Bardziej pomęczyć trzeba się z tą drugą głębiej, jednak po kilku wygięciach kręgosłupa i szyi we wszystkie możliwe strony, ją także uda się poluzować ;). Czujnik ma rezerwę do regulacji, więc nie powinno być problemu - regulacji czujnika nie dokonuje się poprzez przesuwanie góra-dół czy lewo-prawo, lecz poprzez obrót wokół własnej osi czujnika, którego obudowa jest okrągła. W moim przypadku puste miejsca do regulacji zalane były złotym silikonem. W przypadku mojej usterki należało przekręcić czujnik w stronę gdzie tej rezerwy było mniej (zgodnie z ruchem wskazówek zegara).

4. Korekta ustawienia czujnika.
Najłatwiej postawić przód samochodu na klockach (i oczywiście zabezpieczyć, aby się nie zsunął ani nie odjechał), ustawić kierownicę w pozycji 0 (do jazdy na wprost), wrzucić luz, odpalić silnik i zobaczyć w którą stronę przekręci się kierownica. Jeśli przekręci się w lewo (przeciwnie do ruchu wskazówek zegara) czujnik należy obrócić w przeciwną stronę niż obróciła się kierownica (zgodnie z ruchem wskazówek zegara) i vice versa. Przesunięcie czujnika powinno być niewielkie - dosłownie o 1 mm, aby nie przesadzić. (Ja poluzowałem śruby, przesunąłem czujnik i dociągnąłem jedną śrubą - tą z brzegu, do której jest łatwiejszy dostęp). Po odpaleniu silnika (przy nadal uniesionym przodzie auta) należy być przygotowanym do złapania kierownicy, która może sama gwałtownie skręcić w którąś ze stron (zależy, w którą stronę się przesadziło z regulacją czujnika :]). Metodą prób i błędów czujnik należy ustawić w taki sposób, aby po uruchomieniu silnika kierownica nadal pozostawała w pozycji 0. Jednak po dokonaniu regulacji, dociągnięciu śruby i uruchomieniu silnika - jeśli kierownica nie ruszyła się z pozycji 0 - najlepiej wykonać kilka obrotów kierownicą w lewo, w prawo i wtedy ocenić czy w obie strony kręci się z tym samym oporem.

5. Jazda próbna.
Jeśli ustawiliśmy już czujnik tak, że kierownica obraca się w obie strony z takim samym wysiłkiem, najlepiej postawić przód na kołach i dokonać jazdy próbnej. Jeśli wszystko jest w porządku, dociągamy (dosyć mocno) obie śruby - z tą umieszczoną głębiej może być problem, ponieważ przeszkadza metalowy stelaż samochodu. (Mi dokręcenie "trudniejszej" śruby zajęło dużo czasu, ale w końcu się udało). Najlepiej nic jeszcze nie skręcać, lecz po finalnym dokręceniu śrub wykonać jeszcze jedną jazdę próbną, najlepiej z małą prędkością - wtedy wspomaganie działa najsilniej, np. na 2-gim biegu przy 1500 Obr/min wykonać mały slalom (oczywiście, jeśli warunki na to pozwalają :-() - i kiedy tylko się da, jadąc na wprost puszczać kierownicę. Jeśli wszystko jest OK, skręcamy wszystko i cieszymy się jazdą prosto, bez zataczania kółek podczas puszczania kierownicy :).

6. Dla bardziej zaawansowanych.
Może zdarzyć się także, że mamy także problem, że są miejsca gdzie wspomaganie po prostu "nie wspomaga" lub czuć wyraźnie skoki w sile wspomagania podczas skręcania. Jeśli regulacja dała dobry rezultat, ale czuć objawy opisane powyżej, można pokusić się o naprawę także tej usterki. Na początku zaznaczam, że laicy (jakkolwiek to brzmi) nie powinni się za to zabierać - ale jeśli ktoś ma średnie zdolności manualne (wszystko należy robić delikatnie) i trochę cierpliwości może zabierać się do pracy.
P.S. Celowo nie pisałem o tym na początku, bo w wielu mi znanych przypadkach po regulacji okazuje się, że przeskoki lub zaniki wspomagania znikają.

7. Co będzie nam potrzebne?
1. Światło... Najlepiej mocne punktowe światło, które można zamocować w wygodnej dla nas pozycji
2. Zdjęcie rękawiczek, (jeśli ktoś zakładał :D)
3. Preparat - chyba wszystkim dobrze znany: WD-40 (koniecznie z rurką!), lub podobny środek smarująco-konserwujący z długim dozownikiem.

8. Demontaż czujnika.
Uwaga!
Po demontażu czujnika całą pracę związaną z jego regulacją, trzeba będzie wykonać od początku!
Przed wyjęciem czujnika warto markerem zaznaczyć sobie jego położenie - obrysować jego kształt - żeby później łatwiej było go zamontować we właściwej pozycji.
Kierownicę ustawiamy w pozycji 0 :-) (Jazda na wprost).
Należy całkowicie odkręcić śruby trzymające czujnik, (co może być bardzo czasochłonne ze względu na ich umiejscowienie) delikatnie wysunąć go z wgłębienia w kolumnie kierownicy, do samego końca, (po lekkim wysunięciu słychać i czuć będzie lekki trzask czujnika – jest to normalne, po prostu ramię czujnika wyskakuje ze spirali i zostaje cofnięte przez sprężynę) aż ujrzymy małe srebrne łożysko na końcu ramienia czujnika.

9. Smarowanie.
Po odsłonięciu wnęki gdzie był umiejscowiony czujnik, korzystamy z jakiegoś źródła światła i zaglądając do wgłębienia, (ujrzymy metalową spiralę/sprężynę na wale kierowniczym) dozujemy przez rurkę kilka małych dawek WD-40 (bez przesady). Myślę, że wartość w zupełności wystarczająca to około 3-4, 1-sekundowe pryśnięcia głęboko na spiralę. Warto także prysnąć na łożysko i sprawdzić czy pracuje lekko.

10. Montaż czujnika
<!<!< Jest to najtrudniejsza i wymagająca najwięcej cierpliwości i delikatności czynność. >!>!>
Wkładamy czujnik z powrotem we wnękę i musimy w taki sposób manewrować czujnikiem (obracać nim we wnęce, lekko go dociskając) i kołem kierownicy (ustawionej nadal w pozycji 0 - wystarczą tu ruchy o około 30st w jedną i w drugą stronę) aż poczujemy, że czujnik wskoczył na swoje miejsce. Jeśli czujnik nadal nie trafił na swoje miejsce, to między czujnikiem a obudową kolumny kierownicy pozostaje szczelina około 3-4mm. Nie wolno w żadnym przypadku przykręcać wtedy śrub licząc, że "sam wskoczy na swoje miejsce”, bo jest bardzo możliwe, że pożegnamy się na zawsze ze wspomaganiem. (W moim przypadku musiałem odchylić czujnik całkiem sporo od pozycji oryginalnej w stronę przeciwną do ruchu wskazówek zegara - nie daję 100%, że w każdym przypadku jest tak samo, aczkolwiek w końcu mi się to udało). Jeśli poczuliśmy i usłyszeliśmy lekki trzask a także zobaczyliśmy, że nie ma szczeliny między czujnikiem a obudową wału kierowniczego, oznacza to, że czujnik jest na swoim miejscu. Należy jedną ręką go trzymać, (aby nam z powrotem nie wyskoczył z prawidłowego miejsca) a drugą ręką nałożyć śrubę na klucz (zakładając, że klucz jest magnetyczny xD) i wkręcić najpierw do samego końca tę pierwszą (łatwiejszą) śrubę. Gdy już dokręcimy pierwszą śrubę, z drugą też trzeba będzie się trochę pomęczyć (jak zwykle :D), ale teraz będziemy już mieli wolne obie ręce. Gdy w końcu ją dokręcimy, należy ponownie sprawdzić siłę wspomagania (symetryczność) i w razie potrzeby (gdyby nie udało nam się ustawić czujnika poprawnie w określonej wcześniejszymi próbami pozycji) ponownie podnieść przód auta i wykonać instrukcje z punktów 3-5.

11. Skręcanie do stanu początkowego.
Oczywiście na koniec montujemy wszystko w odwrotnej kolejności (nie zapominając o podpięciu wypiętych wcześniej wiązek przewodów) i sprawdzeniu działania poszczególnych podzespołów, w które ingerowaliśmy.

12. Od autora.
Podczas mojej naprawy posługiwałem się tekstem źródłowym w języku angielskim. Wszystko poszło sprawnie, aczkolwiek mozolnie (trzeba naprawdę uważać - szczególnie z czujnikiem - aby niczego nie uszkodzić!). Mam nadzieję, że ten tekst będzie pomocny innym w rozwiązaniu ich problemów z EPS :). Pozdrawiam.
"Wszyscy wiedzą, że coś nie da się zrobić. I wtedy pojawia się ten jeden, który nie wie, że się nie da, i on właśnie to coś robi."- Einstein Albert
ODPOWIEDZ

Wróć do „Układ Kierowniczy”